saint maur
PROJET
CONTEXTE
IDÉE
LIEU
STATUT
EQUIPE
CONTEXTE
IDÉE
LIEU
STATUT
EQUIPE
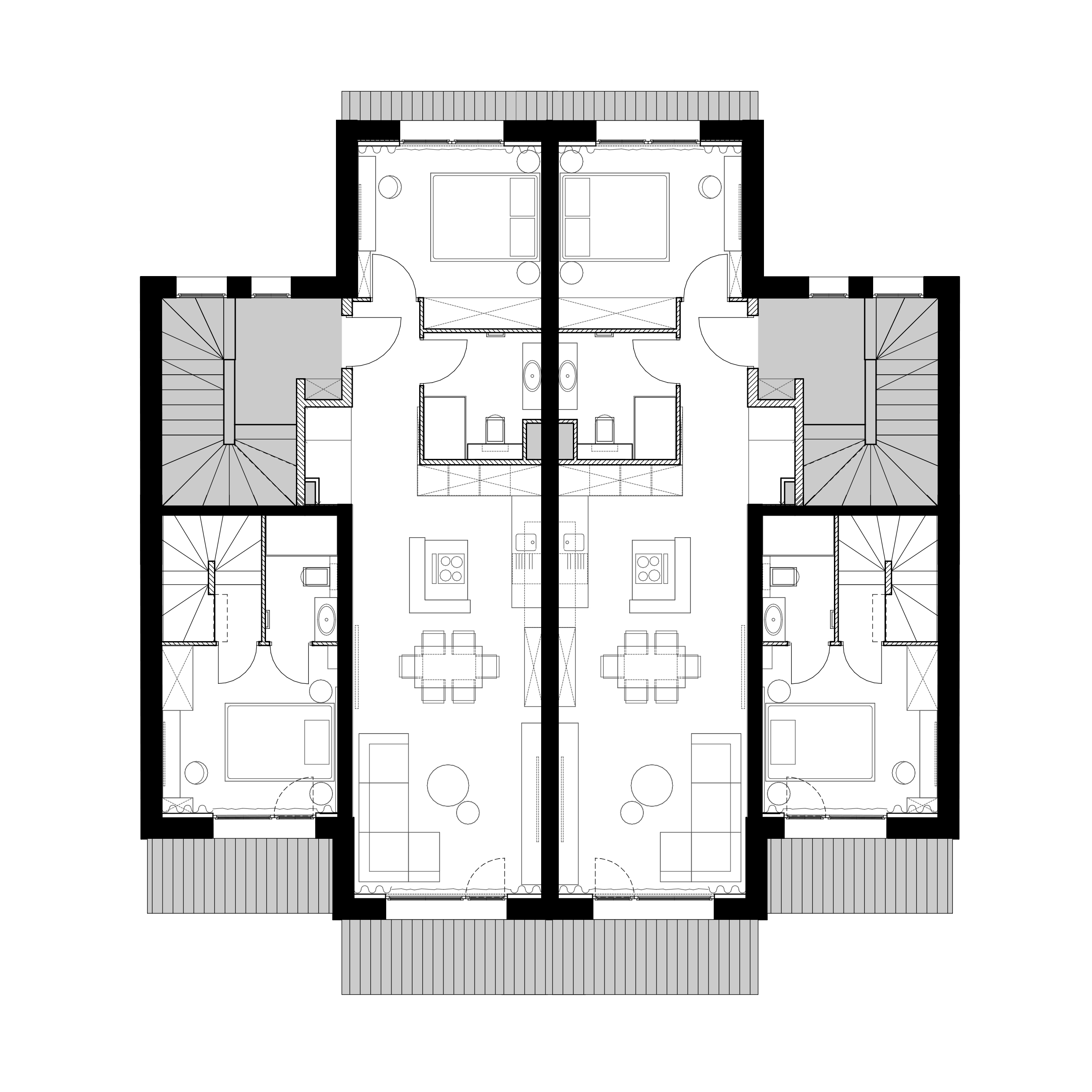
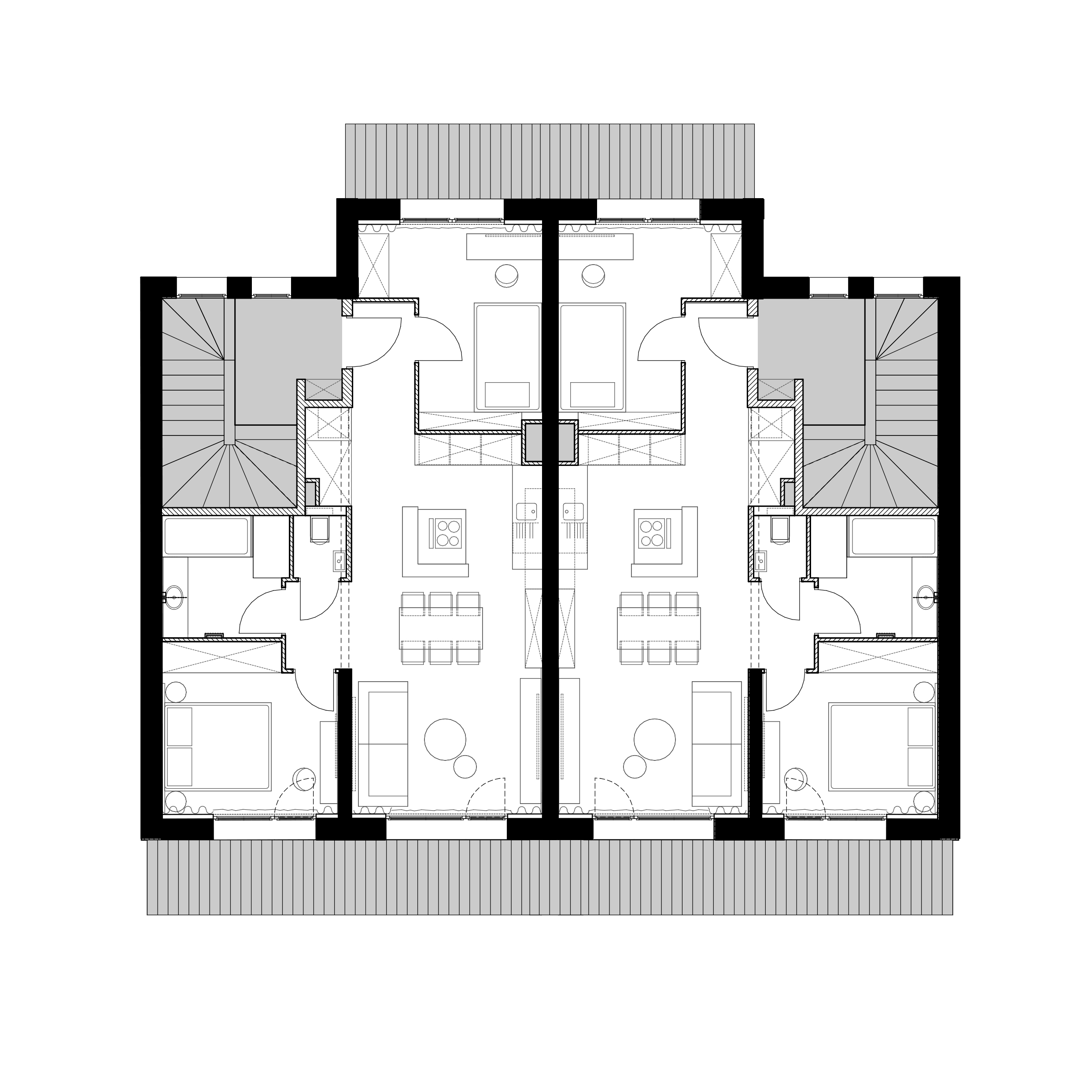
Surélévation et transformation d’un bâtiment
À proximité de Paris, le projet transforme une immense villa en une résidence de six logements de grande surface. Cette transformation architecturale a permis de maximiser l'utilisation de l'espace en réaménageant la villa pour créer six logements distincts, offrant ainsi une expérience de vie privée et exclusive à chaque résident. Chaque logement se distingue par ses vastes surfaces, permettant aux occupants de profiter d'un espace de vie confortable et généreux.
L'attention portée aux espaces extérieurs est un élément essentiel de ce projet. Chaque logement bénéficie de son propre espace extérieur, offrant des possibilités de détente, de loisirs et de convivialité en plein air. Que ce soit des terrasses spacieuses, des jardins privés ou des balcons élégants, ces espaces extérieurs sont conçus pour créer une véritable connexion entre l'intérieur et l'extérieur, permettant aux résidents de profiter pleinement du cadre environnant. En ce qui concerne les équipements, une attention particulière a été portée aux détails de luxe. Les finitions haut de gamme, les matériaux nobles et les équipements modernes ont été soigneusement sélectionnés pour créer une ambiance de luxe dans chaque logement. De plus, des places de stationnement ont été prévues pour répondre aux besoins des résidents, garantissant ainsi un confort et une commodité supplémentaires.
Paris IDF
livré en 2024
michal karol design, notting hill, art design,
À proximité de Paris, le projet transforme une immense villa en une résidence de six logements de grande surface. Cette transformation architecturale a permis de maximiser l'utilisation de l'espace en réaménageant la villa pour créer six logements distincts, offrant ainsi une expérience de vie privée et exclusive à chaque résident. Chaque logement se distingue par ses vastes surfaces, permettant aux occupants de profiter d'un espace de vie confortable et généreux.
L'attention portée aux espaces extérieurs est un élément essentiel de ce projet. Chaque logement bénéficie de son propre espace extérieur, offrant des possibilités de détente, de loisirs et de convivialité en plein air. Que ce soit des terrasses spacieuses, des jardins privés ou des balcons élégants, ces espaces extérieurs sont conçus pour créer une véritable connexion entre l'intérieur et l'extérieur, permettant aux résidents de profiter pleinement du cadre environnant. En ce qui concerne les équipements, une attention particulière a été portée aux détails de luxe. Les finitions haut de gamme, les matériaux nobles et les équipements modernes ont été soigneusement sélectionnés pour créer une ambiance de luxe dans chaque logement. De plus, des places de stationnement ont été prévues pour répondre aux besoins des résidents, garantissant ainsi un confort et une commodité supplémentaires.
Paris IDF
livré en 2024
michal karol design, notting hill, art design,





