
park parc
PROJET
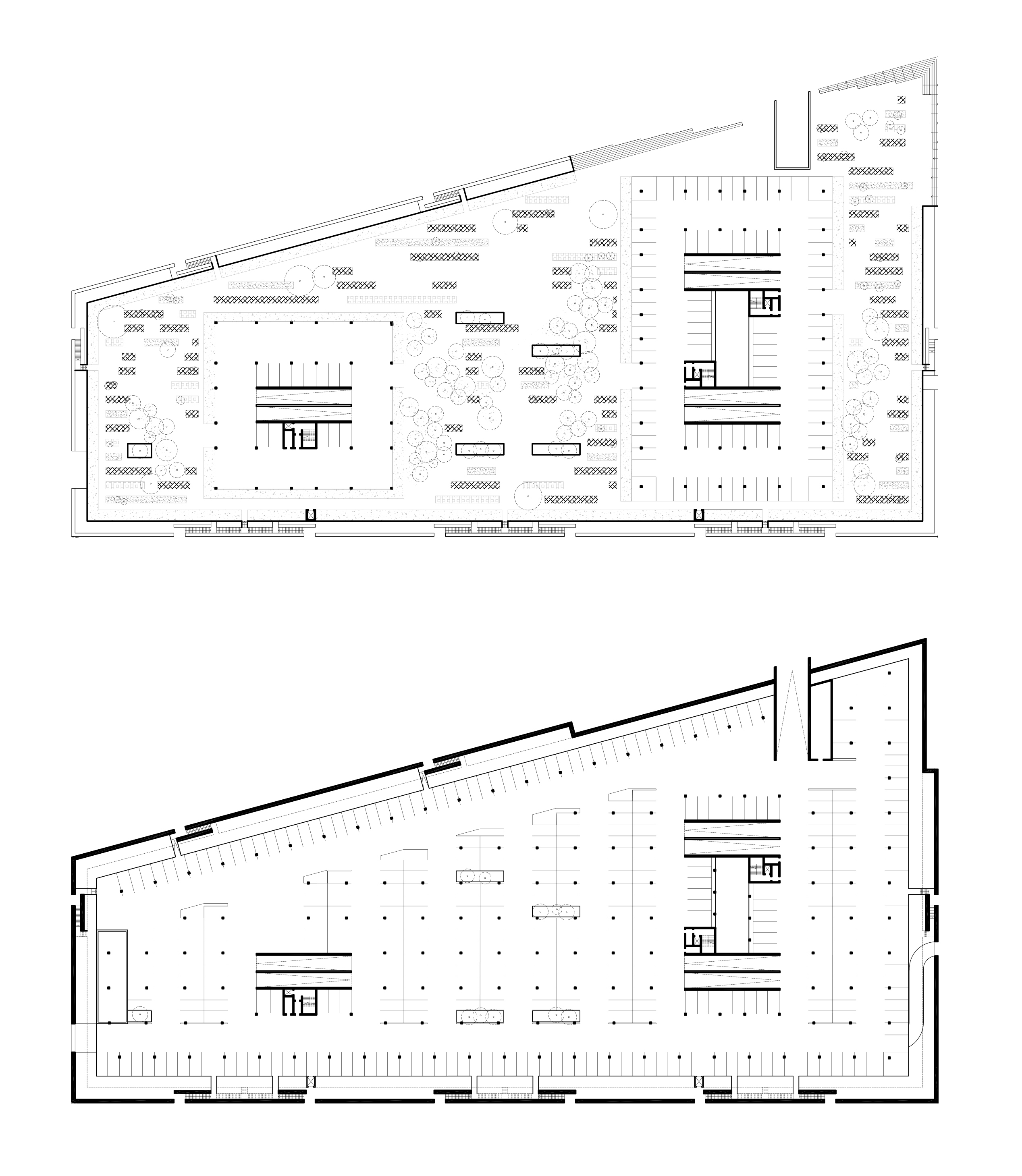
Parking silo de 1400 places
CONTEXTE
La ville de Katowice change et se transforme dynamiquement, de ville surtout industrielle en une capitale culturelle avec notamment un quartier de bâtiments modernes, salles de concerts, théâtres et musées exceptionnels. Cela oblige une réflexion autour du stationnement des véhicules.
IDÉE
Création d’un véritable parc, soulevé par rapport au niveau de la circulation, avec un soubassement en gabions remplis avec du charbon, matériau qui reste le symbole de la région. Par-dessus une structure sublime en bois CLT pour accueillir les visiteurs venant en voiture.
LIEU
Katowice, PL
STATUT
concours - rendu en 2020
EQUIPE
karol architektura, ap architectes, volume architectural visualisation
Parking silo de 1400 places
CONTEXTE
La ville de Katowice change et se transforme dynamiquement, de ville surtout industrielle en une capitale culturelle avec notamment un quartier de bâtiments modernes, salles de concerts, théâtres et musées exceptionnels. Cela oblige une réflexion autour du stationnement des véhicules.
IDÉE
Création d’un véritable parc, soulevé par rapport au niveau de la circulation, avec un soubassement en gabions remplis avec du charbon, matériau qui reste le symbole de la région. Par-dessus une structure sublime en bois CLT pour accueillir les visiteurs venant en voiture.
LIEU
Katowice, PL
STATUT
concours - rendu en 2020
EQUIPE
karol architektura, ap architectes, volume architectural visualisation



